399 000,00 PLN (4 147,18 PLN)

Najtańszy !!! Dom w zabudowie bliźniaczej Głogów

Dom (Bliźniak) na sprzedaż,
Głogów, Pszczelarska

Kontakt z agentem: FREE HOME
Opis nieruchomości

Najtańszy dom w zabudowie bliźniaczej w Głogowie - okazja, która się nie powtórzy!

Na pograniczu Głogowa i malowniczej wsi Szczyglice znajduje się miejsce otoczone łąkami, polami i lasami. To wyjątkowa lokalizacja z pięknymi widokami - idealna dla miłośników natury oraz osób poszukujących spokoju i prywatności, przy jednoczesnym szybkim dostępie do miasta.

Inwestycja cieszy się ogromnym zainteresowaniem - w tej chwili w sprzedaży pozostał już tylko jeden dostępny segment!

Oferta sprzedaży
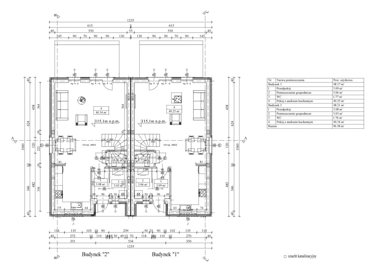
Dom w zabudowie bliźniaczej o powierzchni użytkowej 96,21 m², posadowiony na działce o powierzchni 500 m². Nieruchomość położona jest w cichej i zielonej okolicy, zaledwie kilka minut od centrum Głogowa.

Lokalizacja
Szczyglice to urokliwa wieś w gminie Głogów, która łączy kameralny klimat z wygodą szybkiego dojazdu do miasta. Otoczona naturą miejscowość to doskonałe miejsce do życia dla rodzin, par i każdego, kto pragnie codziennego kontaktu z przyrodą bez rezygnacji z miejskiej infrastruktury.

Opis nieruchomości
Dom znajduje się w stanie surowym zamkniętym. Został zaprojektowany na bazie indywidualnego projektu, z dbałością o funkcjonalność i komfort. Układ pomieszczeń podzielono na dwie strefy: dzienną na parterze oraz prywatną - sypialnianą na piętrze.

Parter to przestronny salon z aneksem kuchennym (40,25 m²), przedpokój (3,09 m²), pomieszczenie gospodarcze (3,06 m²) oraz toaleta (1,77 m²).
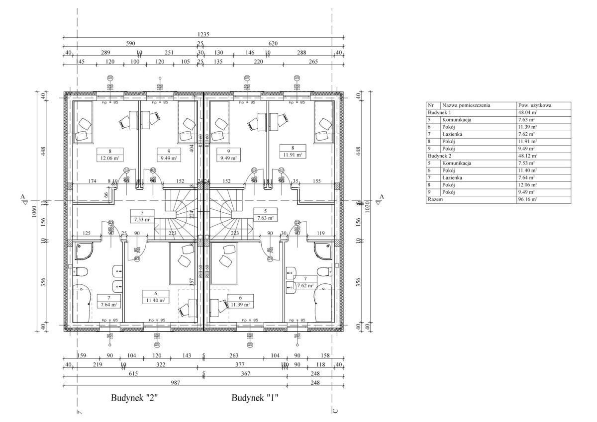
Piętro obejmuje trzy sypialnie (11,91 m², 11,39 m² i 9,49 m²) oraz łazienkę o powierzchni 7,62 m². Wykonane betonowe schody zapewniają swobodne poruszanie się między kondygnacjami i ułatwiają dalsze prace wykończeniowe.

Standard budowy
Dom został wybudowany z bloczków betonowych komórkowych o grubości 24 cm, ocieplony styropianem o grubości 15 cm i wykończony estetyczną elewacją. Na dachu znajduje się dachówka ceramiczna. Wstawiono trzyszybowe okna w kolorze grafitowym, wyposażone w elektrycznie sterowane rolety zewnętrzne. Wewnątrz wykonano instalację kanalizacyjną oraz pierwszą warstwę betonu na podłogach.

Media i technologia
Prąd znajduje się w drodze. Woda dostępna jest z własnej studni głębinowej  z możliwością podłączenia do projektowanego wodociągu. Kanalizacja to przydomowa oczyszczalnia ścieków. Brak instalacji gazowej. Istnieje możliwość zastosowania nowoczesnych i energooszczędnych rozwiązań, takich jak pompa ciepła, rekuperacja czy instalacja fotowoltaiczna.

Stan prawny i dostępność
Nieruchomość posiada uregulowany stan prawny i jest gotowa do zakupu od zaraz. Etap surowy zamknięty pozwala na niezwłoczne rozpoczęcie prac wykończeniowych i urządzenie domu zgodnie z własnym gustem.

FREE HOME biuro nieruchomości Głogów - jesteśmy po to, by pomóc Ci znaleźć miejsce, które pokochasz.

Plany Nieruchomości
Mapa
Kontakt z agentem

FREE HOME

Daria Łukasik
Nieprawidłowy adres E-mail

Strona korzysta z plików cookie w celu realizacji usług zgodnie z Polityką prywatności. Możesz określić warunki przechowywania lub dostępu do cookie w Twojej przeglądarce.